ballbet贝博光电现为河北省信息产业与信息化协会和江苏省照明商会会员企业,河北省智慧路灯团体标准《多功能智慧灯杆系统技术规范》起草单位。
ballbet贝博光电拥有多年的LED照明及亮化产品生产及施工经验 以顾客为上帝,视质量如生命
全国咨询热线:13473293771
联系ballbet贝博

【 微信扫码咨询 】

13473293771

您的位置: 新闻中心 > 科技前沿 >

高杆灯常见问题有哪些(一)高杆灯基础应注意事项

分类:科技前沿 浏览量: 时间:2022-04-28 11:08:49

高杆灯安装,高杆灯基础

高杆灯高度一般指十五米以上,四十米以下(个别特殊要求也有更高的),光源从几个到几十个的大型照明灯具,因此要求高杆灯的基础必须进行科学设计,必要的时候应进行专项地质勘探,以保证高杆灯安全正常的使用。重点应注意以下的几个问题

1、高杆灯的安全防护问题,这里主要是指防雷及漏电保护的问题,高杆灯制作之前必须要了解高杆灯安装位置的地质条件,合理设计防雷击和漏电接地设施,保证雷击或者漏电时及时导引电流入地,确保人民群众的安全。

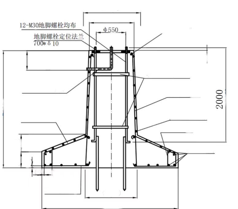
2、高杆灯预埋件问题,高杆灯的预埋件在高杆灯安装以后是看不见的,他对于高杆灯的抗风及直立有着不可替代的支撑作用,必须根据灯杆高度、最大风力、及地质条件进行科学设计并保证一定的冗余度(安全系数)。


三十米高杆灯基础图

二十米高杆灯基础图

3、高杆灯基础施工问题。高杆灯 因为施工质量引起的故障主要表现:一,混凝土标号不够,没有按标准进行施工;二是过道管的制作和安装不符合要求,两端没有按标准做成嗽叭口;三是铺装电缆时在地上拖着走;四是基础的预埋管不按标准要求施工,主要是预埋管过细,再加上一定的弯度,穿电缆时相当困难,在基础底部出现“死弯”情况;五是线鼻子压接和绝缘包缠厚度不够,经过长时间运行就会相间短路。